Baujahr Year of construction
2009

Projektnummer Project number
0901

Kanton Canton
Nidwalden

Ort Location
Wirzweli

Nutzung / Typologie Use / Typology
2 Einfamilienhäuser 2 single-family houses

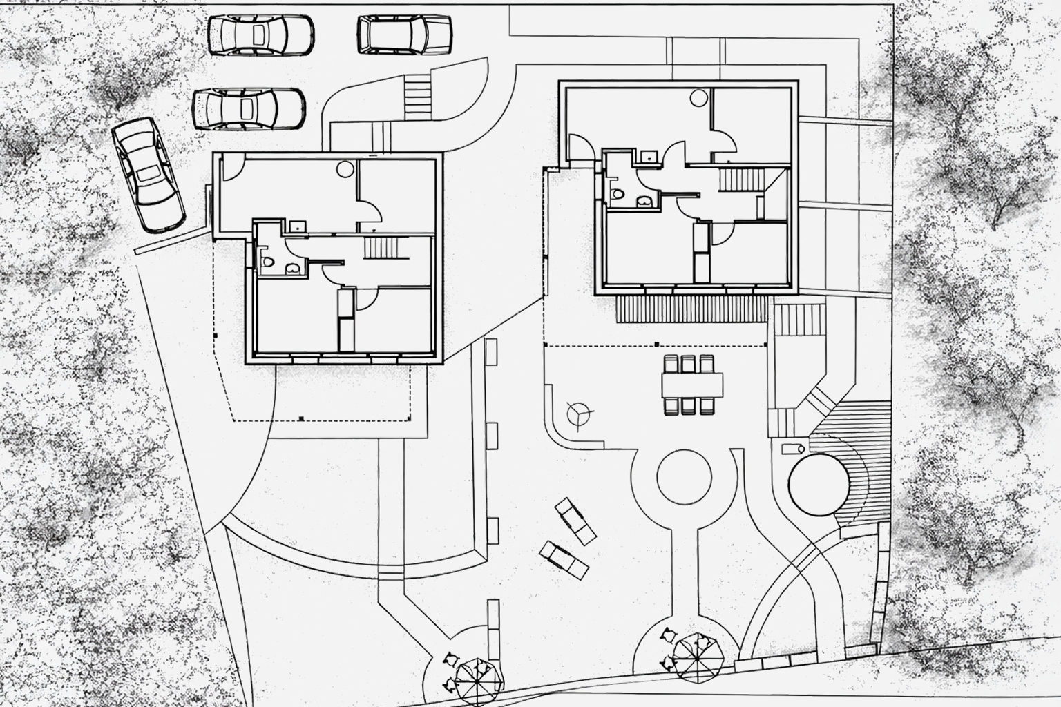
Built in 2009/10 on Wirzweli, two holiday homes were designed to blend harmoniously into the alpine surroundings while reflecting the region’s traditional architectural style. The basements were constructed in solid reinforced concrete, forming a robust foundation for the timber structures above. The upper floors are executed in timber frame construction with stone wool insulation and spruce cladding as the exterior finish, giving the houses a warm and natural appearance. The buildings are heated by electric heating systems – a practical solution for seasonally used properties. Overall, the holiday homes integrate seamlessly into the existing character of Wirzweli. Auf dem Wirzweli entstanden 2009/10 zwei Ferienhäuser, die sich harmonisch in die alpine Umgebung einfügen und den traditionellen Baustil der Region aufnehmen. Die Untergeschosse wurden in massiver Betonbauweise erstellt und bilden ein solides Fundament für die darüberliegenden Holzkonstruktionen. Die oberen Geschosse bestehen aus einer Holzständerbauweise mit einer Dämmung aus Steinwolle und einer Fichtenschalung als äussere Hülle, die den Häusern eine warme, natürliche Ausstrahlung verleiht. Beheizt werden die Gebäude mit Elektroheizungen – eine pragmatische Lösung für saisonal genutzte Objekte. Insgesamt fügen sich die Ferienhäuser optisch nahtlos in das bestehende Wirzweli-Bild ein.

Built in 2009/10 on Wirzweli, two holiday homes were designed to blend harmoniously into the alpine surroundings while reflecting the region’s traditional architectural style. The basements were constructed in solid reinforced concrete, forming a robust foundation for the timber structures above. The upper floors are executed in timber frame construction with stone wool insulation and spruce cladding as the exterior finish, giving the houses a warm and natural appearance. The buildings are heated by electric heating systems – a practical solution for seasonally used properties. Overall, the holiday homes integrate seamlessly into the existing character of Wirzweli. Auf dem Wirzweli entstanden 2009/10 zwei Ferienhäuser, die sich harmonisch in die alpine Umgebung einfügen und den traditionellen Baustil der Region aufnehmen. Die Untergeschosse wurden in massiver Betonbauweise erstellt und bilden ein solides Fundament für die darüberliegenden Holzkonstruktionen. Die oberen Geschosse bestehen aus einer Holzständerbauweise mit einer Dämmung aus Steinwolle und einer Fichtenschalung als äussere Hülle, die den Häusern eine warme, natürliche Ausstrahlung verleiht. Beheizt werden die Gebäude mit Elektroheizungen – eine pragmatische Lösung für saisonal genutzte Objekte. Insgesamt fügen sich die Ferienhäuser optisch nahtlos in das bestehende Wirzweli-Bild ein.
2009
0901
Nidwalden
Wirzweli
2 Einfamilienhäuser 2 single-family houses
Lageplan Brünigstrasse 46, Alpnach Dorf
Bild 6 Bild 6 Bild 2